アンプルールフェールTheEarthの物件詳細 | 川口・蕨の賃貸マンション・アパートをお探しなら株式会社LeGAMEにお任せ下さい!

個人情報の取り扱い サイトマップ
  • お気に入り物件
  • 最近見た物件
LeGAME
川口エリア・蕨エリアの物件情報満載!株式会社LeGAME蕨駅 東口徒歩2分!(tel048-290-8640)営業時間 10:00~19:00(水曜定休)

川口、蕨の賃貸物件に強い株式会社LeGAME。当社は埼玉高速鉄道「南鳩ヶ谷駅」駅徒歩2分、地域密着の会社です。

メールでのお問合せ
トップページ > 川口市 > アンプルールフェールTheEarthの物件詳細

アンプルールフェールTheEarthの物件詳細

アンプルールフェールTheEarthの物件詳細

[お問合せ番号] 4281409

情報更新日:2025年11月04日  NEW

「南鳩ヶ谷駅徒歩2分のお店で、皆様のご来店をお待ちしております。
事前にご予約頂ければ営業時間外の対応も可能です。」

イメージ
ここがポイント
  • 追焚給湯バス!シャンプードレッサー!システムキッチン!


最寄り駅
徒歩
住所
賃料
管理費
共益費
敷金
礼金
面積
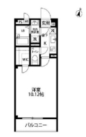
間取り
種別
築年数
京浜東北・根岸線 南浦和駅 歩15分
埼玉県川口市大字小谷場457
6.8万円
0.35万円
敷:なし
礼:1ヶ月
29.11m2
1K
マンション
2009年6月
お気に入りにする 印刷用ページ
048-290-8640

【営業時間】 10:00~19:00 (水曜定休)

前へ 外観 次へ

外観

拡大する
外観 外観 間取図

外観

外観

間取図

玄関 バルコニー 浴室乾燥機

玄関

設備

内装

追焚給湯パネル エントランス 駐車場

内装

エントランス

駐車場

集合ポスト 駐輪場 洋室

共用設備

共用設備

居室

洋室 キッチン 浴室

居室

キッチン

バス

トイレ シャンプードレッサー 洗濯機置場

トイレ

洗面所

洗面所

物件概要

所在地 埼玉県川口市大字小谷場457 周辺地図
交通 京浜東北・根岸線南浦和駅 歩15分/京浜東北・根岸線蕨駅 歩27分/武蔵野線東浦和駅 バス35分国際興業バス「上谷」徒歩1分
賃料
(管理費・共益費)
6.8万円 (0.35万円) 敷金/礼金 敷:なし / 礼:1ヶ月 築年月 2009年6月
間取り 1K 専有面積 29.11m2 間取り詳細 洋10.1帖  K2帖  
種別/構造 マンション/鉄骨 階部分/階建て 3階/3階建て 方位
駐車場の有無 有敷地内 駐車料金 料金(税込み)0.88万円
設備 給湯/バストイレ別/シャワー/追焚/浴室乾燥機/脱衣所/洗面所独立/洗面台/シャンプードレッサー/3点給湯/最上階/バルコニー南/フローリング/照明器具/収納/クローゼット/シューズボックス/ウォークインクローゼット/収納1間半/インターホン/TVモニター付ドアホン/ゴミ置場/駐輪場/インターネット接続可(接続環境:光)/地上デジタル/24h管理/システムキッチン/グリル/上階無し/敷地内ごみ置き場/24時間緊急通報システム/洗面所にドア/24時間電話対応/ガス給湯/集合郵便受け/洗面化粧台/浴室暖房/クレジットカード利用可/IT重説可/オンライン内見可/オンライン相談可/エアコン/洗濯機置場(室内)/ガスコンロ二口設置済み/
入居可能日 2025年12月中旬 契約期間 [契約期間]2年
その他条件 単身者可
連帯保証人不要+制度入会要
保証人代行必須(木下マネージメント/80%/2年毎に2万円の継続保証料 初回総賃料80%)
保険 要(1年/2.112万円)
備考 初期費用のクレジットカード払いも可能☆
お部屋探しは一期一会「LeGAME」で!地元情報満載でご案内いたします!!
その他:南浦和駅1200m
スーパー:ダイエー1000m
スーパー:マルエツ858m
その他:小谷場公園200m
更新日 2025-11-04 18:01:09 情報有効期限 2025-11-11 18:01:09
お問合せ番号 4281409 取引形態 仲介

※各種情報と現状に差異がある場合は、現状優先となります。

物件周辺地図

物件周辺写真

前へ 南浦和駅 次へ

南浦和駅

拡大する
南浦和駅 ダイエー マルエツ 小谷場公園

周辺

周辺

周辺

周辺

同じ建物の別の部屋

該当件数:1件

  • 1階/ - 号室
    間取図
    29.11m2/1K/南
    6.3万円